Dom jednorodzinny z działką oraz lasem. Gmina Osie
Nowy Jaszcz gm. Osie Pokaż na mapie ›
Ogłoszenie archiwalne Wygasło: Niedziela, 09 Sierpień, 2020 18:17
259 000 zł
3047 zł/m2
Szczegóły ogłoszenia
- Kategoria: Domy / Sprzedaż
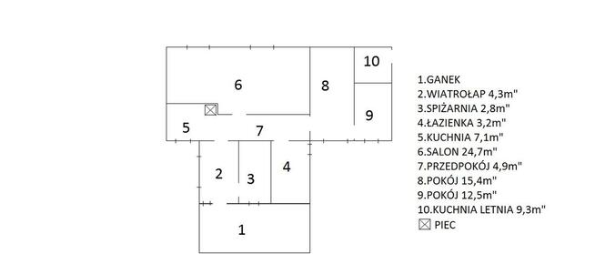
- Powierzchnia:85 m2
- Liczba pokoi:3 pokoje
- Pow. działki:13000 m2
- Rynek:Wtórny
- Rok budowy:1963
- Stan:Do odświeżenia
- Forma kuchni:Oddzielna
- Typ domu:Wolnostojący
- Sprzedaż:Bez pośredników
- Inf. dodatkowe:Ogródek, Pom. użytkowe, Miejsce parkingowe, Garaż
- Cena: 259 000 zł / 3047 zł/m2
Opis oferty
Witam.Na sprzedaż nieruchomość moich dziadków oraz las. Znajduje się ona w miejscowości Nowy Jaszcz (gmina Osie, woj. kujawsko -pomorskie, 7 km od Osia, 19 km od Warlubia, 22 km od Świecia, 30 km od Grudziądza, 45 km od Czerska, 58 km od Starogardu Gdańskiego, 108 km od Gdańska).
Dom o powierzchni 85 m² wybudowano w 1963 roku na działce o łącznej powierzchni 1.3 ha (działka /las). Jest to idealne miejsce dla ludzi ceniących sobie spokój, prywatność oraz bliskość natury. Jednocześnie w promieniu kilku km posiadamy wszelkie udogodnienia cywilizacji tj. m.in.: sklepy, szkoła, przedszkole, ośrodek zdrowia, bank, stacja benzynowa, kościół itp. Dojazd do posesji prowadzi drogą asfaltową oraz alternatywną- utwardzoną przez las.
Dom został docieplony ok. 4 lata temu, odnowiono elewację. Okna są plastikowe, dach natomiast pokrywa blacho-dachówka. Budynek jest częściowo podpiwniczony, a poddasze z możliwością adaptacji. Teren wokół domu jest ogrodzony, na podwórzu znajduję się garaż, pomieszczenia gospodarcze oraz studnia. Dom na co dzień zamieszkują dziadkowie.
Nieruchomość może kupić osoba będąca rolnikiem lub osoba prywatna (wtedy po uzgodnieniu warunków transakcji pomiędzy stronami musimy złożyć wniosek do Krajowego Ośrodka Wsparcia Rolnictwa o pozwolenie na sprzedaż/ zakup, a osoba kupująca musi zobowiązać się że nie przekształci działki na budowlaną przez 5 lat).
Dodatkowych informacji udzielę telefonicznie.
Sprawdź zainteresowanie tym ogłoszeniem
Wyświetlenia
Data dodania
Ostatnio widziany
Obserwujących
Wysłane zapytania
Odsłony telefonu
Powiadom o podobnych ogłoszeniach
Lokalizacja: Nowy Jaszcz
Kategoria: Nieruchomości » Domy » Sprzedaż
Cena: od 220000 zł do 298000 zł Powierzchnia : od 72 m2 do 98 m2
Chcę otrzymywać powiadomienia o nowych ofertach
Brak możliwości kontaktu przez formularz z ogłoszeniodawcą, ponieważ to ogłoszenie jest archiwalne.
Patryk
Konto prywatne
Na Lento.pl od 11 lut 2020
Strona użytkownika
- Wypromuj ogłoszenie
- Zgłoś naruszenie
- Edytuj/usuń ogłoszenie
- Udostępnij ogłoszenie
- Dodaj na Facebook





























